logo

Land for sale in Arnavutköy, specifically in Tayakadın | L307

L307 - Exceptional Investment Opportunity in the Heart of Istanbul!

For sale, a plot of land in the new city plan suitable for residential construction in the future, with an area of 410 square meters in Tayakadın, within the Arnavutköy district of Istanbul. The land is currently not suitable for construction and is classified as agricultural land at this time. This land represents a unique investment opportunity for future residential projects. The area is attracting the attention of investors due to its strong infrastructure and proximity to vital facilities.

Strategic Location :

 

  • It is located 7 kilometers away from the the government's "Emlak Konut" project and Turkish Airlines
  • It is 4 kilometers away from the TOKI projects.
  • It is 1.7 kilometers away from the Istanbul Canal project.
  • The distance to the new Istanbul Airport does not xceed 1.7 kilometers.
  • It is approximately 1 kilometers from the highway.

Land Details :

  • City: Istanbul
  • Area: Arnavutköy
  • Neighborhood: Tayakadın
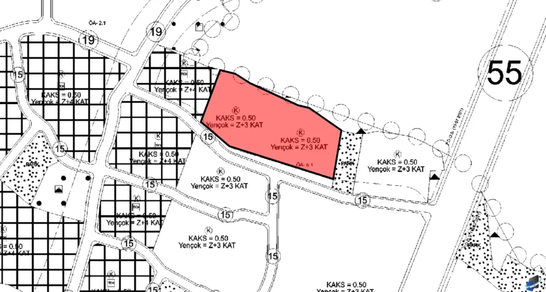
  • Land Type: Residential
  • Building Permit: Licensed and ready
  • Building Ratio: 50%
  • Number of Floors: Ground floor + 3 additional floor

Excellent Infrastructure :

  • Electricity, water, and natural gas services are available.
  • The street is asphalted, facilitating access to the site.

Don’t miss this unique opportunity to invest in one of the fastest-growing areas in Istanbul. 

Close to / Near to

Istanbul Airport
Istanbul Airport
1.7 km
Main Street
Main Street
1 km
Istanbul Canal
Istanbul Canal
1.7 km

Why this property?

  • Arnavutköy is one of the areas most favored by the Turkish government, with the new Istanbul Airport completed in the region and the new canal project being developed within its vicinity. It also features several freshwater lakes, such as Lake Durusu, which supplies a third of Istanbul's population with fresh water. This area has a blend of rural and modern characteristics, containing numerous unused lands available for sale at excellent prices compared to the market.
  • This land is located in a region with future growth potential, given the ongoing future projects. Its proximity to the Istanbul Canal project makes investment here secure and profitable, as the area is expected to experience significant urban development and real estate projects upon the canal's completion. Furthermore, the nearby airport strengthens the investment appeal.
  • Investing in land in Istanbul, particularly in this area, at reasonable prices is advantageous, especially as the region witnesses monumental projects that enhance development opportunities. It is advisable to purchase now rather than later, as demand and prices are likely to rise over time.

I recommend interested parties take advantage of this exceptional housing opportunity in a promising area with integrated infrastructure.